Product Name:
API 600 Power Station Gate Valve.
Valve body: ASTM A217 WC9.
Seat sealing surface: Carbide.
Nominal pressure: 1500 LB to 2500 LB.
Design Criteria: API 600 or ASME B16.34.
Butt Weld Size: ASME B16.5.
Test and Inspection: API 598.
Application: Power station.
The API 600 Power Station Gate Valve with open rod wedge rigid single gate which is manufactured by Topper Valve is butt welded and manually operated. The valve body is made by carbon steel and the seat sealing surface carbide. The nominal pressure is from 1500LB to 2500LB. It is a high-pressure and high-temperature power station gate valve.
Performance parameters
| model |
CLASS |
Applicable temperature / ℃ |
Suitable media |
Body |
| A |
1500LB |
≤570 |
steam |
WC9 |
| B |
1500LB |
≤57 |
steam |
WC9 |
The main part material
| model |
material |
| Body |
Valve plate |
cap |
Stem mother |
filler |
| A |
WC9 |
WC9 |
WC9 |
38CrMoA1A |
Flexible graphite |
| B |
WC9 |
WC9 |
WC9 |
38CrMoA1A |
Flexible graphite |
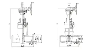
The main shape and connection dimensions
| DN |
L |
D |
H |
D0 |
weight/Kg |
| 50 |
280 |
82 |
585 |
300 |
42 |
| 65 |
340 |
110 |
650 |
320 |
53 |
| 80 |
475 |
130 |
680 |
400 |
130 |
| 100 |
500 |
170 |
755 |
450 |
180 |
| 125 |
600 |
195 |
830 |
500 |
190 |
| 150 |
700 |
225 |
1050 |
550 |
320 |
| 175 |
750 |
255 |
1050 |
600 |
400 |
| 200 |
800 |
285 |
1050 |
650 |
550 |
| 225 |
850 |
300 |
1100 |
700 |
600 |
Diagram
