Carbon Steel Flash Vessel, ASME SA516 70, SA516M 70, SA20

Carbon Steel Flash Vessel, ASME SA516 70, SA516M 70, SA20

Key Specifications / Features

We supply high-quality Carbon Steel Flash Vessels with ASME SA516 70 and ASME SA516M 70 Steel Plate construction. Our vessels also incorporate ASME SA20, ASME SA20M, and ASME SA105M Flanges, ensuring durability and reliability. The manufacturing process includes a precise Shell Rolling Procedure, delivering robust and dimensionally accurate products.
Request a quote

Detail Information


Product Name: Carbon Steel Flash Vessel
Standard: ASME SA516 Grade 70, ASME SA516M Grade 70, ASME SA20, ASME SA20M
Components: 
ASME SA105M Forged Steel Flanges: DN25-DN600, Class 150 LB, ASME B16.5, RF, SCH 80-SCH 160, SCHXXS
Shell Rolling, ASME SA516 Grade 70, ASME SA516M Grade 70 Steel Plate, Heat Exchangers, Gaskets, Level Gauge

Carbon Steel Flash Vessel
 
Carbon Steel Flash Vessel Modeling Carbon Steel Flash Vessel Model

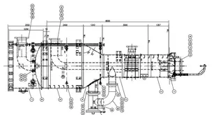
Technical Drawing

Carbon Steel Flash Vessel Technical Drawing
 

Similar Products

Related Searches

Products you might also like

Send your message to this supplier