Working Principles of Ball Valves

The opening and closing part of a ball valve is a ball with a circular channel, which rotates around the axis perpendicular to the channel. The ball rotates with the valve stem to achieve the purpose of opening and closing the channel. Ball valves can be closed with only 90 degree rotations and a small torque. According to the requirements of the operating conditions, different driving devices can be assembled to form a variety of different control methods of ball valves such as electric ball valves, pneumatic ball valves, hydraulic ball valves and so on.

Main working principles of ball valves
When the ball valve rotates 90 degrees, the sphere should be showed in the inlet and outlet. Then you can close the valve and cut off the flow in medium.
When the ball valve rotates 90 degrees, the ball mouth should be showed in the inlet and outlet. Then you can open the flow, and there is basically no flow resistance.

Structure principles of ball valves are as the follwing:
1. A ball valve is not limited by the installation direction. The flow of media can be arbitrary. The hydraulic resistance is small. The full diameter of the ball valve basically has no flow resistance.
2. A ball valve has simple structure and light weights. It is very easy to repair.
3. A ball valve has two sealing surfaces, and its sealing surface material is widely used in a variety of plastics. Its sealing performance is very good. It is also widely used in vacuum systems.
4. A ball valve is suitable for frequent operation, which can be opened and closed quickly and lightly. It is easy to operate the ball vavle, and it can be rotated 90 degrees from full opening to full close. And it is easy to be controlled from a distance.
5. The maintenance is convenient, because the ball valve structure is simple. The seal ring is generally active, so the disassembly and replacement are more convenient.
6. A ball valve has good sealing performance. When it is fully opened or fully closed, the sealing surface of the ball and the seat is isolated from the medium. When the medium passes through, it will not cause erosion of the sealing surface of the valve.
7. Because the ball valve is wipeable during opening and closing, it can be used in media with suspended solid particles.
8. The ball valve fluid resistance is small. Therefore, there is no vibration and noise is little.
 
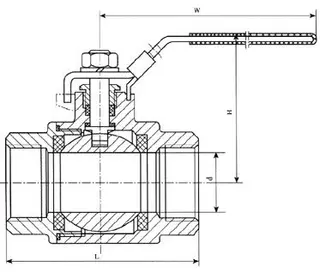
Structure of Ball Valve

Send your message to this supplier


Related Articles from the Supplier

Related Articles from China Manufacturers

Related Products Mentioned in the Article